Home Curriculum Servizi Contattaci
Home
Curriculum
Servizi
Contattaci
 In questa sezione potete vedere alcune delle pratiche realizzate dallo Studio WM.


VIENI A TROVARCI NELLA NOSTRA SEDE A VIA CARDINAL DOMENICO FERRATA, 20. 00165 ROMA
 


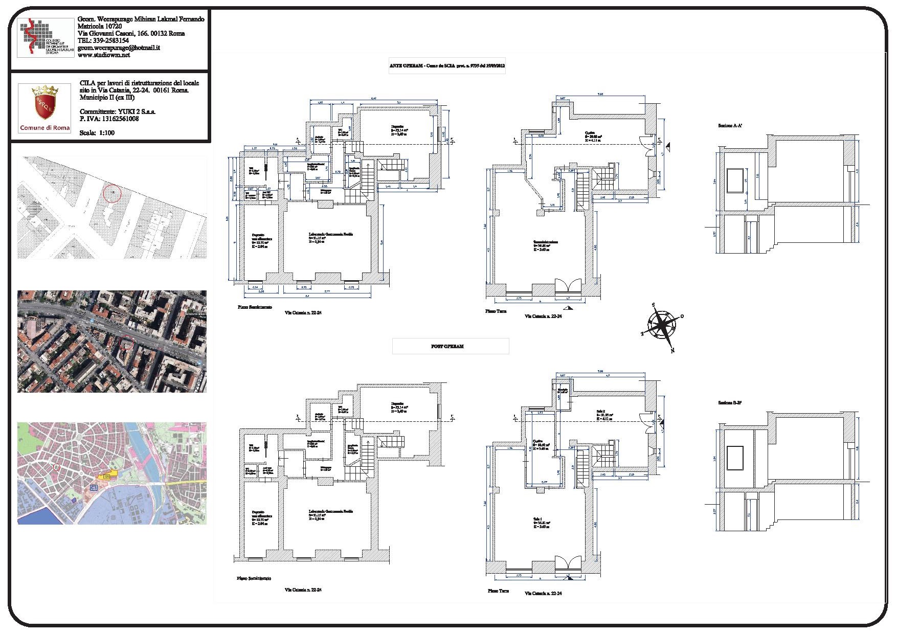
Progetto di Realizzazione e apertura 
Ristorante Sushi in Via Catania denominato YUKI 2. Progetto con ristrutturazione interna dei locali e apertura SCIA commerciale.



Progetto di Realizzazione e apertura attività Ricettiva extralberghiera di Casa Vacanza in Roma Via Cardinal Domenico Ferrata. Denominazione: Residenza Pamphili Roma.


Ristrutturazione ed accorpamento di due unità immobiliari ad uso abitativo in Via Antonio De Micheli a Roma.



Apertura Attività di Vendita al dettaglio di Libri in Via Timavo con relativo permesso per installazione di insegna e tenda parasole.



Site Map